The Tallinn Garage 10ft x 17ft offers a perfect solution for anyone looking for a large workspace or wants a more economic option for storage.Â
A solid 40mm interlocking cabin the building comes complete with extra wide double doors making it easy to fit your car or machinery in.Â
The timber construction makes it considerably cheaper than a brick-built option and is comparable to the concrete sectional options on the market.
Features:
- 40mm Smooth Planed Interlocking Wall Boards
- 16mm Tongue & Groove Floor
- 16mm Tongue & Groove Roof
- 2no Extra Wide Braced Access Doors
- Extremely Tall Eaves/Ridge Heights
- Tanalised Timber Frame to Stand On
- Optional personal door
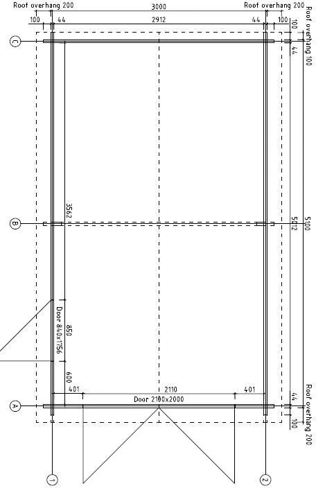
Dimensions:
- Length 5100mm
- Width 3000mm
- Base Size 5010 x 2910mm
- External Ridge 2723mm
- External Eaves 2109mm
- External Area Excl Roof 5300 x 3200mm
- External Area Incl Roof 5400 x 3400mm
Delivery & installation:
Backed by decades of experience, we can construct your new garden building quickly and efficiently at a time and date to suit you. Unlike other companies, we have our very own highly acclaimed team members who have a wealth of experience while ensuring excellent customer service.
Installations are on the understanding that at pre-prepared firm, level base and adequate access is provided. It is entirely the customers responsibility to assess the size, quality, suitability and location of the base. No responsibility will be accepted for any misalignment the stability of any building installed on an unlevel or inadequate base.
















Reviews
There are no reviews yet.